Visuel produit
Description
- Marque : Métalinox
- Type : Neuf
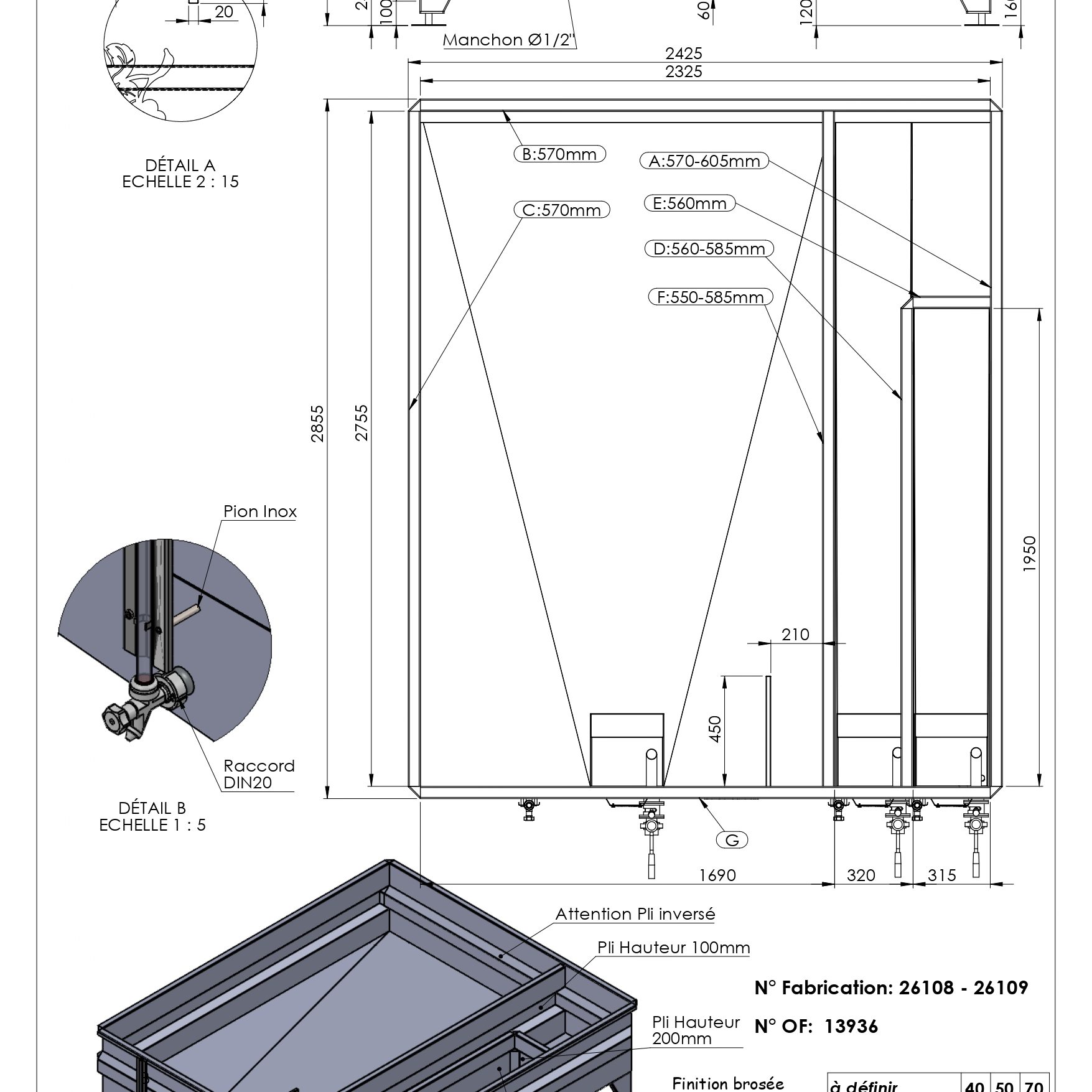
- Contenance : 26 + 6 + 3 HL
- Modèle : Belon 4000
- Matériaux : INOX 304 L
- Pression : Atmosphérique
- Exécution : Simple paroi
- Nombre de compartiment : 1
- Réfrigérée : Non
Equipements
- 3 compartiments
- 3 coudes décanteurs DN 40
- 3 vannes papillons DN 40
- 3 robinets de niveau inox sur DIN20
- 3 règles de niveau inox avec tube de niveau
- 1 grappe de raisin
- 3 plaques constructeur
- 3 plaques de jaugeage
- 1/2 doigt de gant pour sonde
- 3 vidanges totales DN 40
Dimensions
- Longueur : 2855 mm
- Largeur : 2425 mm
- Hauteur Totale : 820 mm
- Epaisseur fond : 4 mm
- Epaisseur virole : 3 mm
- Finition intérieure : 2 B
- Finition extérieure : Brossé Grain 220
Prix et conditions
- Prix départ usine : Nous consutler
- Garantie : 6 mois
- Paiement : Acompte de 30% à la commande Solde à la livraison – Règlement par chèque ou virement
Référence article
- BEL-CO30060
- CUVE N° 1017
- Quantité : 1
Nous contacter



